Your way
Our custom home builders help you design and build your home, so you’re only limited by your imagination.
Firm price
Your independent Wausau Homes Builder will give you a firm price in your contract with the Builder.
On time
Your contract with the Wausau Homes Builder will contain specific move-in date.

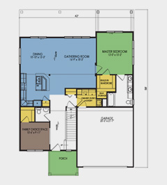
Explore our floor plans
If you need a little inspiration, begin by browsing our highly customizable floor plans.

Find your local builder
Search the Wausau Homes network of local independent authorized home builders to find one serving your new neighborhood.
Enter a Valid Input.
or Search by StateTHE WAUSAU HOMES DIFFERENCE
The Wausau Homes building method lets you completely customize your dream home while staying on budget, on schedule, and to the highest building standards. See how our custom-built homes are different from stick-built homes, prefab homes, and modular homes.
Compare Building Methods

WHAT SETS US APART
Our Unique Building Process
Our complete building system is recognized as one of the best in the industry! Utilizing our state of the art home building software and facility, our team ensures that your home will be structurally sound, energy efficient, and completed in as little as two to five days once the foundation is poured.
Our Stress-Free Steps
With over 60 years of custom home building under our belts, we have simplified the home buying experience, from the first design sketch to move in the day. Your independent Wausau Homes Builder is here to make building your dream home a stress-free experience with our simplified step-by-step process.
Designed to Fit Your Lifestyle
Need wider hallways or higher ceilings? Your independent Wausau Homes Builder works closely with you throughout the process to customize your home inside and out. You can bring your custom floor plans, a list of ideas, or a photograph and we'll figure out how to build it. If you need a little more guidance, you can browse our seven fully customizable series.